d7edd4ab1eb76bb9a066461dd59b17e0

Bedrijfsaanbod

Wattstraat 62

2171 TR Sassenheim

€ 45.000,- p.j.

Omschrijving

Bedrijfspand gelegen op het industrieterrein Sassenheim-Zuid, aan de rand van Sassenheim. De bedrijfsunit heeft een totale oppervlakte van circa 450 m², verdeeld over drie verdiepingen van elk circa 150 m², met op iedere etage een ruime bedrijfsruimte. Op de eerste verdieping bevinden zich daarnaast een kantoor, een berging en een toilet. Voor het pand liggen zes eigen parkeerplaatsen. Het pand is voorzien van 24 zonnepanelen en op de begane grond en 1e verdieping is een heater aanwezig.

Locatie
Perfect gelegen aan de rand van Sassenheim en Voorhout, midden in de Duin- en Bollenstreek. Dankzij de nabijgelegen oprit naar de A44 is het pand uitstekend bereikbaar vanuit de grote steden Amsterdam, Rotterdam, Den Haag, Leiden en Haarlem. Ook het station van Sassenheim en de uitstekende busverbindingen dragen bij aan de optimale bereikbaarheid.

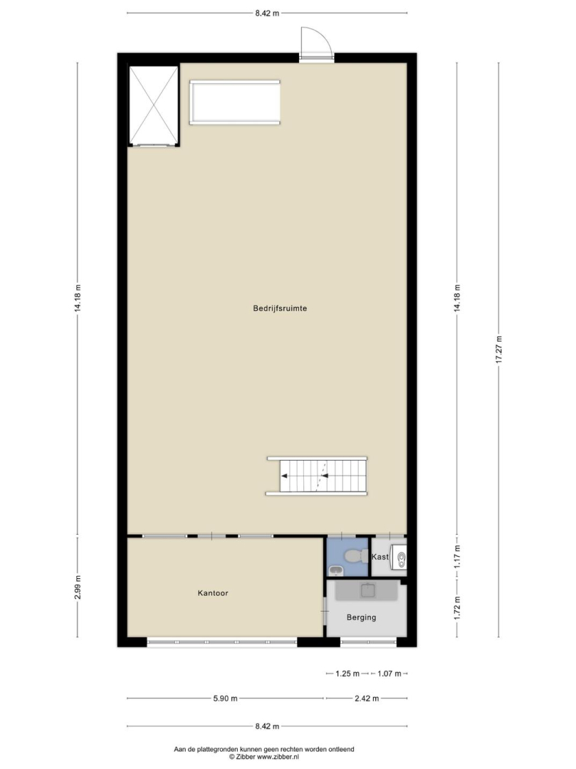
Indeling:
Begane grond:
Entree via de loopdeur naar een grote open bedrijfsruimte met hoge plafonds en een ruime vide. De aanwezige goederenlift (max. 1.000 kg) maakt het verplaatsen van materialen eenvoudig. Vanuit de bedrijfsruimte geeft een vaste trap toegang tot de eerste verdieping.

1e Verdieping:
Trapopgang naar de eerste verdieping met toegang tot de bedrijfsruimte. Op deze verdieping bevinden zich tevens het toilet, een kast met de opstelling van de cv-ketel, een pantry met spoelbak, en een kantoorruimte met daglicht. Daarnaast is er een ruime open werkruimte met werkbanken en opslagmogelijkheden.

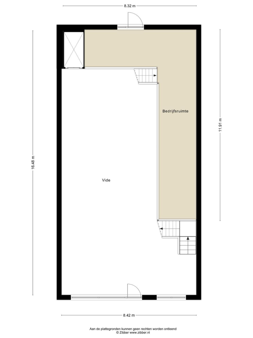
2e Verdieping:
Overloop met toegang tot een royale bedrijfsruimte, voorzien van een lichtkoepel waardoor er extra daglicht binnenvalt. De ruimte is ingericht met ruime stellingen, ideaal voor opslag. Vanuit deze bedrijfsruimte is er toegang tot een tweede, kleinere bedrijfsruimte.

+ Lees de volledige omschrijving

Kenmerken

Overdracht
Status Beschikbaar
Prijs € 45.000,- p.j.
Bouw
Soort bedrijfsruimte Bedrijfsruimtes
Soort bouw Bestaande bouw
Bouwjaar 1999
Oppervlakte
Bedrijfsoppervlakte 450 m²
Perceel 207 m²
Indeling
Voorzieningen Heater, Toilet, Pantry
Energie
Cv-combiketel Nee
Kadastrale gegevens
Gemeente Sassenheim
Oppervlakte 207 m³
Parkeerplaatsen 6 niet overdekt 0 overdekt
Ligging Bedrijventerrein
Bereikbaarheid Snelwegafrit op op 500 m tot 1000 m

Plattegronden

1010 lilian aartman fotografie warmerdam makelaardij noordwijkerhout 2025 07 15

Meer informatie?

Stuur ons een bericht en we nemen zo snel mogelijk contact met je op.

Anti-spam
Typ bovenstaande code over.