Omschrijving
In de Bloembollenstreek, dicht bij zee ligt dit zeer gunstig en vrij gelegen object van maar liefst 8.148 m². Het geheel is voorzien van veel groen en wordt aan drie zijden begrensd door water, hetgeen veel privacy biedt. Een uniek object met veel mogelijkheden en een bijzonder gunstige ligging.
PERCEEL 1 (nummer A 4167, groot 3.798 m² bestemming wonen)
Betreft het erf met daarop een (gedateerde) vrijstaande, eenvoudige woning uit 1968, welke de volgende indeling heeft,
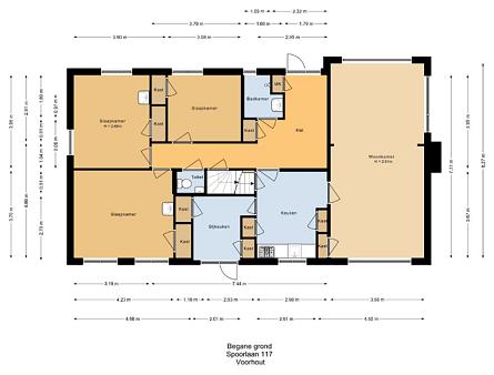
Begane grond:
Entree, ruime hal met meterkast, vaste kast, toilet en badkamer met douche en wastafel. Vanuit de hal zijn de 3 slaapkamers bereikbaar, allen met een vaste kast en 2 slaapkamers met een wastafel. De keuken is eenvoudig ingericht met 2 vaste kasten en een kelderkast, een 4 pits gaskookplaat en oven. Vanuit de keuken is de bijkeuken bereikbaar met 2 vaste kasten en toegang tot de verouderde serre en de riante achtertuin. De woonkamer heeft een schouw met aansluiting voor een kachel, is zeer ruim en heeft een fantastisch uitzicht.
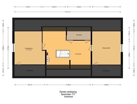
1e verdieping:
Ruime overloop met opstelplaats voor de cv ketel (Vaillant) en een ruime, diepe bergkast en 2 ruime slaapkamers. Tegen de woning aan staat een oude garage daar naast een vrijstaande stenen bollenschuur (ca.12x9 m) en een fraaie eigen oprijlaan.
De opstallen zijn verouderd en kunnen vervangen worden door nieuwbouw.
PERCEEL 2 (nummer A 2125, groot 4.350 m² bestemming tuin)
Betreft het naastgelegen grasland met bomen. Vanuit de woning heeft u vrij uitzicht op dit perceel dat zeer geschikt is als moestuin, paardenwei of gewoon als mooie, grote tuin.
Locatie:
Voorhout (gemeente Teylingen, Zuid-Holland) is met ca. 17.000 inwoners een kleine gemeente in de Bloembollenstreek. Het dorp heeft een gezellig centrum met winkels, scholen en horecagelegenheden en ook zijn er volop sportfaciliteiten. Het object is zeer centraal en gunstig gelegen nabij de Nederlandse kust. Het strand van Noordwijk aan Zee is op fietsafstand (6 km). Er is daartoe recent een nieuwe fietsverbinding gemaakt door ecologisch aangelegd gebied. Tevens bevinden zich golfbanen, duinen en bossen op korte afstand en is er een open vaarverbinding naar de Kagerplassen en Leiden. Tot slot biedt de nabijheid van de A44 en de treinstations in Voorhout en Sassenheim een uitstekende verbinding met belangrijke steden zoals Leiden, Haarlem, Den Haag, Rotterdam, Amsterdam en de luchthaven Schiphol, waardoor reizen gemakkelijk en snel is.
Hoogheemraadschap van Rijnland maakt (sporadisch) gebruik van de oprijlaan voor de bediening van hun gemaal.
In de Bloembollenstreek, dicht bij zee ligt dit zeer gunstig en vrij gelegen object van maar liefst 8.148 m². Het geheel is voorzien van veel groen en wordt aan drie zijden begrensd door water, hetgeen veel privacy biedt. Een uniek object met veel mogelijkheden en een bijzonder gunstige ligging.
PERCEEL 1 (nummer A 4167, groot 3.798 m² bestemming wonen)
Betreft het erf met daarop een (gedateerde) vrijstaande, eenvoudige woning uit 1968, welke de volgende indeling heeft,
Begane grond:
Entree, ruime hal met meterkast, vaste kast, toilet en badkamer met douche en wastafel. Vanuit de hal zijn de 3 slaapkamers bereikbaar, allen met een vaste kast en 2 slaapkamers met een wastafel. De keuken is eenvoudig ingericht met 2 vaste kasten en een kelderkast, een 4 pits gaskookplaat en oven. Vanuit de keuken is de bijkeuken bereikbaar met 2 vaste kasten en toegang tot de verouderde serre en de riante achtertuin. De woonkamer heeft een schouw met aansluiting voor een kachel, is zeer ruim en heeft een fantastisch uitzicht.
1e verdieping:
Ruime overloop met opstelplaats voor de cv ketel (Vaillant) en een ruime, diepe bergkast en 2 ruime slaapkamers. Tegen de woning aan staat een oude garage daar naast een vrijstaande stenen bollenschuur (ca.12x9 m) en een fraaie eigen oprijlaan.
De opstallen zijn verouderd en kunnen vervangen worden door nieuwbouw.
PERCEEL 2 (nummer A 2125, groot 4.350 m² bestemming tuin)
Betreft het naastgelegen grasland met bomen. Vanuit de woning heeft u vrij uitzicht op dit perceel dat zeer geschikt is als moestuin, paardenwei of gewoon als mooie, grote tuin.
Locatie:
Voorhout (gemeente Teylingen, Zuid-Holland) is met ca. 17.000 inwoners een kleine gemeente in de Bloembollenstreek. Het dorp heeft een gezellig centrum met winkels, scholen en horecagelegenheden en ook zijn er volop sportfaciliteiten. Het object is zeer centraal en gunstig gelegen nabij de Nederlandse kust. Het strand van Noordwijk aan Zee is op fietsafstand (6 km). Er is daartoe recent een nieuwe fietsverbinding gemaakt door ecologisch aangelegd gebied. Tevens bevinden zich golfbanen, duinen en bossen op korte afstand en is er een open vaarverbinding naar de Kagerplassen en Leiden. Tot slot biedt de nabijheid van de A44 en de treinstations in Voorhout en Sassenheim een uitstekende verbinding met belangrijke steden zoals Leiden, Haarlem, Den Haag, Rotterdam, Amsterdam en de luchthaven Schiphol, waardoor reizen gemakkelijk en snel is.
Hoogheemraadschap van Rijnland maakt (sporadisch) gebruik van de oprijlaan voor de bediening van hun gemaal.
+ Lees de volledige omschrijving