bb69e2a09d3b80a8682137b1c3b32b6a

Woningaanbod

Secretaris Varkevisserstraat 301

2225 LD Katwijk

€ 650.000,- k.k.

Omschrijving

In het hart van Katwijk, aan de geliefde Secretaris Varkevisserstraat, staat deze prachtige half vrijstaande jaren ’30 woning met luxe afwerking en verrassend veel leefruimte en een zonnige, beschutte achtertuin. Achter de charmante gevel gaat een prachtig huis schuil dat met veel zorg en oog voor detail is afgewerkt. Authentieke elementen zoals paneeldeuren, fraaie kozijnen, inbouwkasten en hoge ramen gaan hier hand in hand met modern wooncomfort. Omdat er naast de woning, ook extra (woon)ruimte is aangebouwd en er zich een multifunctionele ruimte met verdieping achterin de tuin bevindt, elk met eigen voorzieningen, is dit een uniek object met ongekende mogelijkheden.

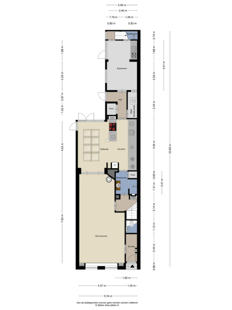
Indeling begane grond:
Via de entree komt u in de hal, met garderobe en de toiletruimte met wandcloset en fontein. Vanuit de hal is er toegang tot de woonkamer. De gezellige woonkamer straalt warmte uit met haar sfeervolle houtkachel en prachtige plavuizenvloer met vloerverwarming. De paneel- en schuifdeuren naar de woonkeuken zorgen voor een naadloze verbinding tussen de verschillende ruimtes. De woonkeuken is een echte eyecatcher: een ruim kook (schier)eiland met betonnen aanrechtblad, inductiekookplaat met (in het plafond verwerkt) afzuigsysteem, een combimagnetron. Daarnaast is er een rechte opstelling met nog meer werkblad, een oven, vaatwasser, koelkast en vriezer. De lichtstraat zorgt voor een natuurlijke lichtinval en de houtkachel maakt het geheel extra sfeervol. Via openslaande deuren is er toegang tot de tuin. Op de begane grond bevindt zich tevens een moderne badkamer met inloopdouche en stoer wastafelmeubel. Via de keuken bereikt u de bijkeuken. De bijkeuken is voorzien van prachtige inbouwkast als garderobe en een inloop was/stook ruimte met aansluiting wasapparatuur en opstelling CV-combiketel. Aansluitend vindt u een apart verblijf met eigen keuken, toilet en douche, vaste kast en trap naar de verdieping – ideaal als gastenverblijf, mantelzorgwoning of werkruimte.

Indeling 1e verdieping:
Hier bevinden zich drie slaapkamers, elk met een eigen karakter. Een van de slaapkamers (achterzijde) heeft een wastafel, inbouwkast en deur naar het dakterras. De gehele verdieping is voorzien van authentieke grenen vloerdelen. Een slaapkamer met dakkapel en inbouwkast. De (ouder)slaapkamer met inloopkast en schuifdeur naar eigen badkamer voorzien van wastafel, ligbad, hand- en stortdouche en designradiator. De charmante luikjes voor de ramen versterken de jaren ’30 sfeer. Op de overloop bevinden zich ook nog een inbouwkast en een apart toilet.

Indeling 2e verdieping:
Via een vaste trap bereikt u de ruime zolder met nog eens twee slaapkamers, beide voorzien van een dakraam en wastafel. Deze verdieping biedt volop ruimte voor werk-, hobby- of logeerkamers en heeft op de overloop twee inbouwkasten.

Tuin:
De zonnige, fraai aangelegde achtertuin is een heerlijke plek om te ontspannen. Achterin de tuin staat een ruim bijgebouw bestaande uit een “veranda” met een fijne buitenkeuken en een sfeervolle haard. Een perfecte plek voor lange (zomer)avonden met familie en vrienden. Grenzend aan de “veranda” bevindt zich een hele fijne extra ruimte. Beneden vindt u een moderne keuken, douche en toilet, en via een trap komt u op de verdieping alwaar een multi- functionele ruimte.

Bijzonderheden:
Authentieke jaren ’30 details gecombineerd met modern comfort;
In de hoofdwoning alleen al 5 slaapkamers!;
Aangebouwde extra ruimte met verdieping te gebruiken als mantelzorgwoning etc;
“Veranda” met buitenkeuken, haard en extra multifunctionele ruimte;
Vloerverwarming op de gehele begane grond;
Luxe woonkeuken met kookeiland en lichtkoepel;
Inbouwkasten in vrijwel elke kamer;
Ruime tuin met optimale privacy.

+ Lees de volledige omschrijving

Woningvideo

Kenmerken

Overdracht
Status Verkocht
Prijs € 650.000,- k.k.
Vraagprijs per m² € 3.591
Aanvaarding In overleg
Bouw
Soort woonhuis Eengezinswoning
Soort bouw Bestaande bouw
Bouwjaar 1930
Soort dak ZADELDAK
Oppervlakte
Wonen 181 m²
Externe bergruimte 0
Gebouwgebonden buitenruimte 18 m²
Perceel 132 m²
Inhoud 693 m³
Overige inpandige ruimte 6 m²
Indeling
Aantal kamers 9
Aantal slaapkamers 6
Aantal badkamers 3 badkamers
Badkamervooziening wastafelmeubel, inloopdouche, ligbad, wastafelmeubel, toilet, douche
Voorzieningen Dakraam
Energie
Energielabel B
Energielabel einddatum 13-10-2035
Isolatie dakisolatie, muurisolatie, vloerisolatie, dubbel glas, hr glas
Verwarming cv ketel, vloerverwarming gedeeltelijk, houtkachel
Warm water cv ketel, elektrische boiler eigendom
Cv-ketel Remeha Avanta () Eigendom
Cv-combiketel Ja
Cv-ketel eigendom eigendom
Cv-ketel brandstof gas
Kadastrale gegevens
Gemeente Katwijk
Perceelnummer 10684
Eigendomssituatie volle eigendom
Sectie 478
Gemeentecode A
Oppervlakte 132 m³
Ligging In Centrum

360 graden

Plattegronden

1010 lilian aartman fotografie warmerdam makelaardij noordwijkerhout 2025 07 15

Meer informatie?

Stuur ons een bericht en we nemen zo snel mogelijk contact met je op.

Anti-spam
Typ bovenstaande code over.