Omschrijving
OPEN HUIS zaterdag 4 oktober van 11:00 tot 15:00 uur.
U bent van harte welkom!
Welkom op het prestigieuze Landgoed Sancta Maria, waar historie, comfort en luxe samenkomen. Aan de Pauluslaan vindt u dit exclusieve herenhuis met een inhoud van maar liefst 1.066 m³ en op een royaal perceel van 408 m². Hier geniet u van een ongeëvenaarde woonbeleving in een bosrijke, serene omgeving met uitstekende voorzieningen en hoogwaardige afwerking. Dit historische pand dateert uit einde twintiger jaren en is met behoud van het originele karakter en respect voor de omgeving, zeer kundig gerenoveerd met gebruikmaking van hoogwaardige materialen. Zo is er een comfortabele, smaakvolle en eigentijdse woning gecreëerd. Prachtig zijn de vele raampartijen en hoge plafonds, zowel op de begane grond als op de etages. U heeft onder meer de beschikking over een kelder, sfeervolle living, royale woonkeuken, een stijlvolle master bedroom met inloopkast en badkamer en suite. Op de 2e verdieping is er nog een zit- en slaapkamer, tweede badkamer en apart toilet.
Aan de voorzijde is er een heerlijk terras op het zuidoosten met uitzicht op de prachtige blauwspar. De achtertuin is fijn breed en biedt veel privacy door de groene hagen en er zijn diverse borders waar groene beplanting is aangebracht.
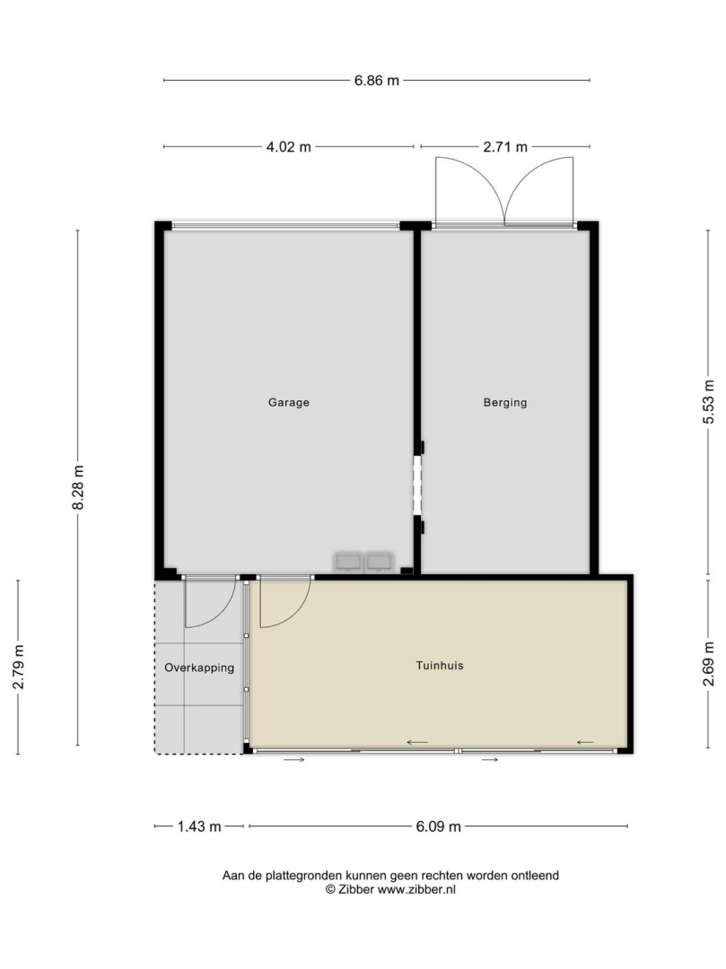
Daarbij is er nog een grote garage en een kleinere garage/berging met aansluitend de gezellige veranda. Het is heerlijk vertoeven op zowel het terras, de tuin als de veranda, hier kunt van de vroege ochtend tot de late uurtjes van het buitenleven genieten.
Landgoed Sancta Maria
Landgoed Sancta Maria ligt in de prachtige Duin- en Bollenstreek. Dit stukje kust zult u als een oase binnen alle drukte van de randstad ervaren. Het landgoed zelf mag met recht uniek worden genoemd. Hier woont u op één van de mooiste plekken van het land met de duinen en het strand heel dichtbij. Maar dat niet alleen, via de provinciale weg bent u ook zo in Leiden, Haarlem, Den Haag, Rotterdam, Amsterdam en op de luchthaven Schiphol. Overigens hoeft u nooit ver weg voor de dagelijkse boodschappen of voor culinair genot. De dorpscentra van zowel Noordwijk als Noordwijkerhout zijn om de hoek en hebben een uitstekend aanbod aan winkels en horecagelegenheden. Geniet u straks van deze schitterende locatie met de zee en het duingebied op loop- en fietsafstand, dan kunt u met recht ‘even’ een verfrissende duik nemen of lekker uitwaaien tijdens een lange strandwandeling. Wonen op Landgoed Sancta Maria is wonen op absoluut topniveau. Met uw keuze voor dit prachtige herenhuis is het elke dag genieten. U woont hier in alle rust op de fraaiste locatie van de gemeente Noordwijk. Het landgoed kent bijzondere plekken en bijzondere verhalen. Het zijn cultuurhistorische en landschappelijke elementen die een belangrijke plaats blijven innemen en het unieke karakter van dit prachtige landgoed garanderen.
Indeling begane grond:
Entree:
De voorzijde van het herenhuis biedt een heerlijk terras met vrij uitzicht over het landgoed. De dubbele voordeur geeft toegang tot de hal, een prachtige binnenkomst die u nieuwsgierig maakt naar de rest van de woning.
Woonkamer:
Vanuit de hal betreedt u, via de dubbele glazen deuren, de lichte woonkamer die een warme en uitnodigende sfeer ademt, mede door de gezellige gasgestookte haard. De gehele begane grond is voorzien van een prachtige Hongaarse punt vloer met vloerverwarming, wat luxe en comfort perfect combineert. Via de openslaande deuren in de woonkamer loopt u zo het terras op van dit fijne herenhuis, waar u een heerlijke plek heeft om te genieten van een kopje koffie in de ochtendzon.
Hal:
Via de hal bereikt u de royale woonkeuken. In de hal is er een prachtig trappenhuis, geheel in de stijl van de woning, en een ruim toilet met wandcloset en fontein. Tevens bevindt zich hier de trap naar de ondergelegen kelder.
Woonkeuken:
De keuken is van absolute topklasse van het merk Bulthaup en voorzien van hoogwaardige inbouwapparatuur. Zo is er een inductiekookplaat met geïntegreerde afzuiging van het merk Bora en zijn de ingebouwde oven met magnetron, de koffiemachine en de vaatwasser van het merk Gaggenau. In de enorme kastenwand vindt u ook nog een ingebouwde koelkast en vriezer en er is een zee aan bergruimte in de kasten en onder het royale kook- en spoeleiland. De gashaard zorgt voor een gezellige sfeer tijdens de koudere dagen.
Indeling 1e verdieping:
Via het imposante trappenhuis met vide bereikt u de eerste verdieping met twee zeer riante slaapkamers. De master bedroom is over de gehele breedte uitgerust met een (losse) kastenwand. Daarbij is er een inloopkast van het merk Porro en heeft u de beschikking over een eigen badkamer en suite met regen- en handdouche, een design waszuil, een designradiator en een apart toilet. De badkamer is voorzien van vloerverwarming. De tweede slaapkamer is thans in gebruik als werk- en zitkamer en kijkt uit op de heerlijk zonnige achtertuin.
Indeling 2e verdieping:
Overloop met aparte technische ruimte, alwaar de opstelplaats van de CV-installatie met geïntegreerde boiler, twee mechanische ventilatiesystemen en veel bergruimte. Een verrassend ruime en lichte verdieping met maar liefst vier dakramen en een schitterende balkenpartij. Momenteel is deze verdieping ingericht als een zelfstandige woon/hobby- en slaapgelegenheid. Via de overloop is het aparte toilet bereikbaar en de tweede badkamer met een grote inloopdouche en een fraai wastafelmeubel.
Kelder:
In de kelder is veel bergruimte en de opstelplaats van de wasmachine, droger en waterontharder. Bent u een liefhebber van wijn, dan kunt u uw wijnverzameling opslaan in een authentieke wijnkelder.
Tuin:
De heerlijk zonnige en onderhoudsarme achtertuin (aangelegd 2022) bereikt u via de woonkeuken of via de (dubbele) garage die achter de woning ligt. De garage heeft een elektrische roldeur en de aangrenzende tweede, kleinere garage/berging heeft openslaande deuren. In de achtertuin is het volop genieten, zowel in de zon als onder de luxe veranda met glazen wanden, afsluitbaar en voorzien van twee heaters.
Bijzonderheden:
Gelegen in het historisch paviljoen Bernadette.
Riant perceel van ca. 408 m².
Hoogwaardige afwerking en topmerken (Bulthaup, Gaggenau, Porro).
3 Volwaardige woonlagen + kelder.
Luxe woonkeuken met gashaard en vloerverwarming.
Wijnkelder, veranda, garage met laadpaal en zonnepanelen.
Instapklaar en goed onderhouden.
Schilderwerk buiten 3e kwartaal 2025.
OPEN HUIS zaterdag 4 oktober van 11:00 tot 15:00 uur.
U bent van harte welkom!
Welkom op het prestigieuze Landgoed Sancta Maria, waar historie, comfort en luxe samenkomen. Aan de Pauluslaan vindt u dit exclusieve herenhuis met een inhoud van maar liefst 1.066 m³ en op een royaal perceel van 408 m². Hier geniet u van een ongeëvenaarde woonbeleving in een bosrijke, serene omgeving met uitstekende voorzieningen en hoogwaardige afwerking. Dit historische pand dateert uit einde twintiger jaren en is met behoud van het originele karakter en respect voor de omgeving, zeer kundig gerenoveerd met gebruikmaking van hoogwaardige materialen. Zo is er een comfortabele, smaakvolle en eigentijdse woning gecreëerd. Prachtig zijn de vele raampartijen en hoge plafonds, zowel op de begane grond als op de etages. U heeft onder meer de beschikking over een kelder, sfeervolle living, royale woonkeuken, een stijlvolle master bedroom met inloopkast en badkamer en suite. Op de 2e verdieping is er nog een zit- en slaapkamer, tweede badkamer en apart toilet.
Aan de voorzijde is er een heerlijk terras op het zuidoosten met uitzicht op de prachtige blauwspar. De achtertuin is fijn breed en biedt veel privacy door de groene hagen en er zijn diverse borders waar groene beplanting is aangebracht.
Daarbij is er nog een grote garage en een kleinere garage/berging met aansluitend de gezellige veranda. Het is heerlijk vertoeven op zowel het terras, de tuin als de veranda, hier kunt van de vroege ochtend tot de late uurtjes van het buitenleven genieten.
Landgoed Sancta Maria
Landgoed Sancta Maria ligt in de prachtige Duin- en Bollenstreek. Dit stukje kust zult u als een oase binnen alle drukte van de randstad ervaren. Het landgoed zelf mag met recht uniek worden genoemd. Hier woont u op één van de mooiste plekken van het land met de duinen en het strand heel dichtbij. Maar dat niet alleen, via de provinciale weg bent u ook zo in Leiden, Haarlem, Den Haag, Rotterdam, Amsterdam en op de luchthaven Schiphol. Overigens hoeft u nooit ver weg voor de dagelijkse boodschappen of voor culinair genot. De dorpscentra van zowel Noordwijk als Noordwijkerhout zijn om de hoek en hebben een uitstekend aanbod aan winkels en horecagelegenheden. Geniet u straks van deze schitterende locatie met de zee en het duingebied op loop- en fietsafstand, dan kunt u met recht ‘even’ een verfrissende duik nemen of lekker uitwaaien tijdens een lange strandwandeling. Wonen op Landgoed Sancta Maria is wonen op absoluut topniveau. Met uw keuze voor dit prachtige herenhuis is het elke dag genieten. U woont hier in alle rust op de fraaiste locatie van de gemeente Noordwijk. Het landgoed kent bijzondere plekken en bijzondere verhalen. Het zijn cultuurhistorische en landschappelijke elementen die een belangrijke plaats blijven innemen en het unieke karakter van dit prachtige landgoed garanderen.
Indeling begane grond:
Entree:
De voorzijde van het herenhuis biedt een heerlijk terras met vrij uitzicht over het landgoed. De dubbele voordeur geeft toegang tot de hal, een prachtige binnenkomst die u nieuwsgierig maakt naar de rest van de woning.
Woonkamer:
Vanuit de hal betreedt u, via de dubbele glazen deuren, de lichte woonkamer die een warme en uitnodigende sfeer ademt, mede door de gezellige gasgestookte haard. De gehele begane grond is voorzien van een prachtige Hongaarse punt vloer met vloerverwarming, wat luxe en comfort perfect combineert. Via de openslaande deuren in de woonkamer loopt u zo het terras op van dit fijne herenhuis, waar u een heerlijke plek heeft om te genieten van een kopje koffie in de ochtendzon.
Hal:
Via de hal bereikt u de royale woonkeuken. In de hal is er een prachtig trappenhuis, geheel in de stijl van de woning, en een ruim toilet met wandcloset en fontein. Tevens bevindt zich hier de trap naar de ondergelegen kelder.
Woonkeuken:
De keuken is van absolute topklasse van het merk Bulthaup en voorzien van hoogwaardige inbouwapparatuur. Zo is er een inductiekookplaat met geïntegreerde afzuiging van het merk Bora en zijn de ingebouwde oven met magnetron, de koffiemachine en de vaatwasser van het merk Gaggenau. In de enorme kastenwand vindt u ook nog een ingebouwde koelkast en vriezer en er is een zee aan bergruimte in de kasten en onder het royale kook- en spoeleiland. De gashaard zorgt voor een gezellige sfeer tijdens de koudere dagen.
Indeling 1e verdieping:
Via het imposante trappenhuis met vide bereikt u de eerste verdieping met twee zeer riante slaapkamers. De master bedroom is over de gehele breedte uitgerust met een (losse) kastenwand. Daarbij is er een inloopkast van het merk Porro en heeft u de beschikking over een eigen badkamer en suite met regen- en handdouche, een design waszuil, een designradiator en een apart toilet. De badkamer is voorzien van vloerverwarming. De tweede slaapkamer is thans in gebruik als werk- en zitkamer en kijkt uit op de heerlijk zonnige achtertuin.
Indeling 2e verdieping:
Overloop met aparte technische ruimte, alwaar de opstelplaats van de CV-installatie met geïntegreerde boiler, twee mechanische ventilatiesystemen en veel bergruimte. Een verrassend ruime en lichte verdieping met maar liefst vier dakramen en een schitterende balkenpartij. Momenteel is deze verdieping ingericht als een zelfstandige woon/hobby- en slaapgelegenheid. Via de overloop is het aparte toilet bereikbaar en de tweede badkamer met een grote inloopdouche en een fraai wastafelmeubel.
Kelder:
In de kelder is veel bergruimte en de opstelplaats van de wasmachine, droger en waterontharder. Bent u een liefhebber van wijn, dan kunt u uw wijnverzameling opslaan in een authentieke wijnkelder.
Tuin:
De heerlijk zonnige en onderhoudsarme achtertuin (aangelegd 2022) bereikt u via de woonkeuken of via de (dubbele) garage die achter de woning ligt. De garage heeft een elektrische roldeur en de aangrenzende tweede, kleinere garage/berging heeft openslaande deuren. In de achtertuin is het volop genieten, zowel in de zon als onder de luxe veranda met glazen wanden, afsluitbaar en voorzien van twee heaters.
Bijzonderheden:
Gelegen in het historisch paviljoen Bernadette.
Riant perceel van ca. 408 m².
Hoogwaardige afwerking en topmerken (Bulthaup, Gaggenau, Porro).
3 Volwaardige woonlagen + kelder.
Luxe woonkeuken met gashaard en vloerverwarming.
Wijnkelder, veranda, garage met laadpaal en zonnepanelen.
Instapklaar en goed onderhouden.
Schilderwerk buiten 3e kwartaal 2025.
+ Lees de volledige omschrijving