Omschrijving
Verzorgde, royale splitlevel woning in Romeinse stijl aan het Lentepark.
Aan het fraaie Lentepark in Nieuw-Vennep bevindt zich deze speelse en goed onderhouden splitlevel woning, gebouwd in 2002 onder architectuur van Charles Vandenhove. Dit ruime herenhuis is uitgevoerd in Romeinse stijl en valt direct op door het karakteristieke gebruik van rode baksteen, statige pilaren, grote raampartijen en het markante zinken koepelvormige dak. De ligging aan het park zorgt voor een rustige en prettige woonomgeving. De woning beschikt over een royale woonkeuken waar koken een plezier is, twee comfortabele woongedeeltes waarvan een met balkon, waar je geniet van een weids uitzicht over het groene Lentepark, een luxe badkamer, twee slaapkamers, een tuin met berging én parkeergelegenheid op eigen terrein. De woning is gelegen in een kindvriendelijke en groene wijk met diverse speeltuintjes en een kunstgras voetbalveldje om de hoek. Voor je dagelijkse boodschappen wandel je zo naar het nabijgelegen winkelcentrum. In de directe omgeving bevinden zich meerdere basisscholen, kinderdagverblijven, middelbare scholen, sportfaciliteiten, het Venneperhout en Park21. Ook natuurliefhebbers zitten hier goed: de Toolenburgerplas ligt op slechts enkele minuten fietsen en biedt strandjes, speeltuinen en gezellige horecagelegenheden. Wat bereikbaarheid betreft is de ligging ideaal. De R-net snelbus rijdt overdag, ’s avonds én in het weekend zelfs ’s nachts naar Schiphol en Amsterdam. Bovendien zijn de uitvalswegen naar onder meer Haarlem en andere delen van het land snel bereikbaar.
Indeling:
Begane grond:
U komt binnen in een ruime hal met praktische garderobekasten, de meterkast en toegang tot het net afgewerkte toilet met fonteintje. Vanuit de hal bereikt u het trappenhuis naar de eerste verdieping én een handige multifunctionele kamer, voorzien van een ingebouwde kast en aansluiting voor de wasmachine, ideaal als wasruimte, werkplek of logeerkamer. Via stijlvolle ensuite¬deuren stapt u de royale open leefkeuken in, met een gezellige zithoek en volop ruimte om te koken, te eten en samen te zijn. Wat direct opvalt, is het indrukwekkende plafond van maar liefst 4 meter hoog, wat de ruimte een bijzonder ruimtelijk en licht karakter geeft. De keuken is volledig uitgerust met hoogwaardige inbouwapparatuur van Siemens: een koelkast, vriezer, oven, vaatwasser, een inductiekookplaat en een Grohe heet waterkraan. Vanuit de keuken/zithoek leiden twee openslaande deuren direct naar het terras in de achtertuin. De begane grond is bovendien voorzien van comfortabele vloerverwarming, wat zorgt voor extra wooncomfort het hele jaar door.
1e Verdieping:
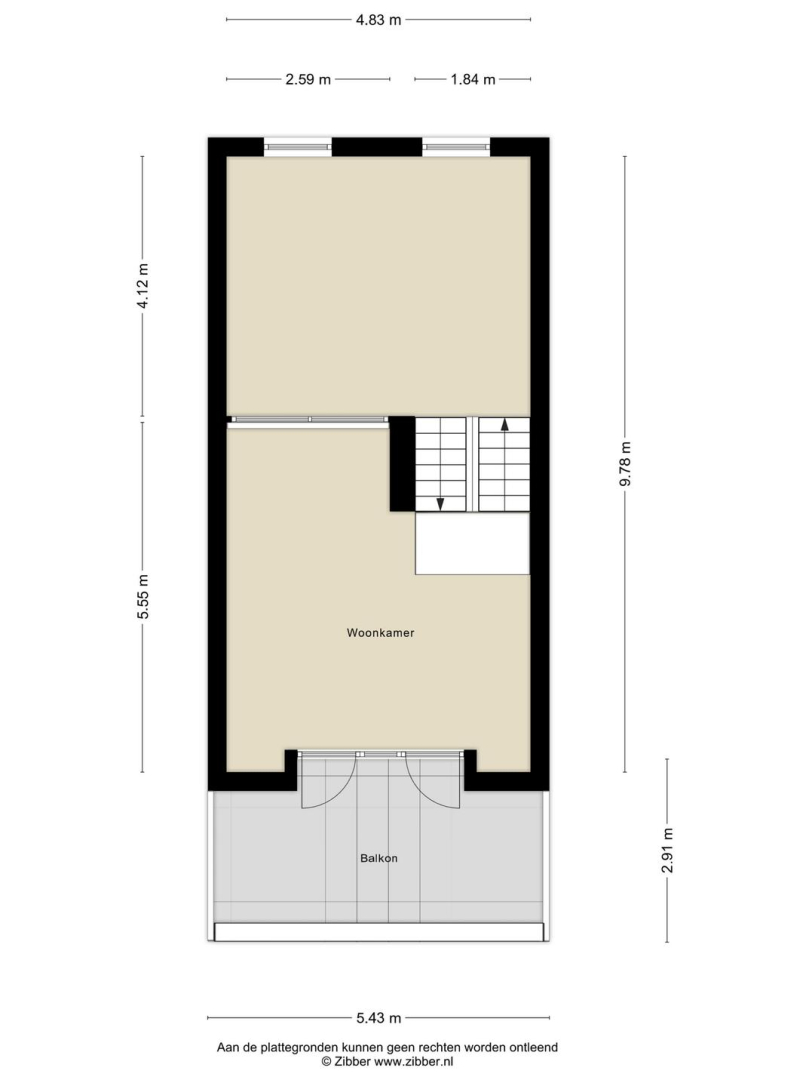
Via het trappenhuis bereikt u de ruime en lichte woonkamer, waar de massief houten vloer en het indrukwekkende plafond van 4 meter hoog direct in het oog springen. De grote raampartijen zorgen voor een prachtige lichtinval en een gevoel van ruimte en rust. Grenzend aan de woonkamer ligt een ruim balkon op het zuidwesten, waar je geniet van een weids uitzicht over het groene Lentepark.
2e Verdieping:
Vanuit de woonkamer leidt een trap naar een verhoogd tweede ruimte, perfect in te richten als extra zithoek, tv-kamer of thuiswerkplek.
3e Verdieping:
Op deze verdieping bevinden zich twee ruime slaapkamers, waarvan de masterbedroom is voorzien van een ingebouwde kledingkast. De moderne badkamer (gerenoveerd in 2022) is stijlvol en compleet uitgerust met een ligbad, inloopdouche, een wastafelmeubel met dubbele waskommen en vloerverwarming voor extra comfort. Daarnaast is er een apart toilet aanwezig. Op de overloop vindt u ook een praktische kast met de CV-ketel (2017) en mechanische ventilatie. Tot slot is er nog een royale vliering, gelegen over de volledige breedte en lengte van de woning, perfect als extra berging.
Tuin:
Aan de achterzijde van de woning ligt een fijne, onderhoudsvriendelijke tuin. Het ruime terras op het noordwesten, direct grenzend aan de leefkeuken, maakt van de tuin een verlengstuk van je woonruimte. Ideaal voor gezellige etentjes in de buitenlucht of een ontspannen kop koffie in de ochtendzon. Achter in de tuin bevindt zich nog een ruime berging met elektrische roldeur handig voor fietsen, tuinspullen of extra opslag. Naast de berging ligt een parkeerplaats op eigen terrein. Ook aan de voorzijde is het genieten: hier bevindt zich een charmante veranda met uitzicht op het groene Lentepark, een heerlijke plek voor een rustig moment in de ochtendzon of juist om de dag relaxed af te sluiten.
Bijzonderheden:
Oplevering 2026;
Moderne badkamer, vernieuwd in 2022;
Vloerverwarming op de begane grond én in de badkamer;
Buitenkozijnen, ramen en deuren geschilderd in 2023;
Parkeerplaats op eigen terrein;
Gelegen in een rustige, kindvriendelijke buurt;
Dicht bij uitvalswegen naar o.a. Amsterdam, Den Haag en Haarlem;
Uitstekende OV-verbindingen via R-net snelbus. (Zuidtangent)
Verzorgde, royale splitlevel woning in Romeinse stijl aan het Lentepark.
Aan het fraaie Lentepark in Nieuw-Vennep bevindt zich deze speelse en goed onderhouden splitlevel woning, gebouwd in 2002 onder architectuur van Charles Vandenhove. Dit ruime herenhuis is uitgevoerd in Romeinse stijl en valt direct op door het karakteristieke gebruik van rode baksteen, statige pilaren, grote raampartijen en het markante zinken koepelvormige dak. De ligging aan het park zorgt voor een rustige en prettige woonomgeving. De woning beschikt over een royale woonkeuken waar koken een plezier is, twee comfortabele woongedeeltes waarvan een met balkon, waar je geniet van een weids uitzicht over het groene Lentepark, een luxe badkamer, twee slaapkamers, een tuin met berging én parkeergelegenheid op eigen terrein. De woning is gelegen in een kindvriendelijke en groene wijk met diverse speeltuintjes en een kunstgras voetbalveldje om de hoek. Voor je dagelijkse boodschappen wandel je zo naar het nabijgelegen winkelcentrum. In de directe omgeving bevinden zich meerdere basisscholen, kinderdagverblijven, middelbare scholen, sportfaciliteiten, het Venneperhout en Park21. Ook natuurliefhebbers zitten hier goed: de Toolenburgerplas ligt op slechts enkele minuten fietsen en biedt strandjes, speeltuinen en gezellige horecagelegenheden. Wat bereikbaarheid betreft is de ligging ideaal. De R-net snelbus rijdt overdag, ’s avonds én in het weekend zelfs ’s nachts naar Schiphol en Amsterdam. Bovendien zijn de uitvalswegen naar onder meer Haarlem en andere delen van het land snel bereikbaar.
Indeling:
Begane grond:
U komt binnen in een ruime hal met praktische garderobekasten, de meterkast en toegang tot het net afgewerkte toilet met fonteintje. Vanuit de hal bereikt u het trappenhuis naar de eerste verdieping én een handige multifunctionele kamer, voorzien van een ingebouwde kast en aansluiting voor de wasmachine, ideaal als wasruimte, werkplek of logeerkamer. Via stijlvolle ensuite¬deuren stapt u de royale open leefkeuken in, met een gezellige zithoek en volop ruimte om te koken, te eten en samen te zijn. Wat direct opvalt, is het indrukwekkende plafond van maar liefst 4 meter hoog, wat de ruimte een bijzonder ruimtelijk en licht karakter geeft. De keuken is volledig uitgerust met hoogwaardige inbouwapparatuur van Siemens: een koelkast, vriezer, oven, vaatwasser, een inductiekookplaat en een Grohe heet waterkraan. Vanuit de keuken/zithoek leiden twee openslaande deuren direct naar het terras in de achtertuin. De begane grond is bovendien voorzien van comfortabele vloerverwarming, wat zorgt voor extra wooncomfort het hele jaar door.
1e Verdieping:
Via het trappenhuis bereikt u de ruime en lichte woonkamer, waar de massief houten vloer en het indrukwekkende plafond van 4 meter hoog direct in het oog springen. De grote raampartijen zorgen voor een prachtige lichtinval en een gevoel van ruimte en rust. Grenzend aan de woonkamer ligt een ruim balkon op het zuidwesten, waar je geniet van een weids uitzicht over het groene Lentepark.
2e Verdieping:
Vanuit de woonkamer leidt een trap naar een verhoogd tweede ruimte, perfect in te richten als extra zithoek, tv-kamer of thuiswerkplek.
3e Verdieping:
Op deze verdieping bevinden zich twee ruime slaapkamers, waarvan de masterbedroom is voorzien van een ingebouwde kledingkast. De moderne badkamer (gerenoveerd in 2022) is stijlvol en compleet uitgerust met een ligbad, inloopdouche, een wastafelmeubel met dubbele waskommen en vloerverwarming voor extra comfort. Daarnaast is er een apart toilet aanwezig. Op de overloop vindt u ook een praktische kast met de CV-ketel (2017) en mechanische ventilatie. Tot slot is er nog een royale vliering, gelegen over de volledige breedte en lengte van de woning, perfect als extra berging.
Tuin:
Aan de achterzijde van de woning ligt een fijne, onderhoudsvriendelijke tuin. Het ruime terras op het noordwesten, direct grenzend aan de leefkeuken, maakt van de tuin een verlengstuk van je woonruimte. Ideaal voor gezellige etentjes in de buitenlucht of een ontspannen kop koffie in de ochtendzon. Achter in de tuin bevindt zich nog een ruime berging met elektrische roldeur handig voor fietsen, tuinspullen of extra opslag. Naast de berging ligt een parkeerplaats op eigen terrein. Ook aan de voorzijde is het genieten: hier bevindt zich een charmante veranda met uitzicht op het groene Lentepark, een heerlijke plek voor een rustig moment in de ochtendzon of juist om de dag relaxed af te sluiten.
Bijzonderheden:
Oplevering 2026;
Moderne badkamer, vernieuwd in 2022;
Vloerverwarming op de begane grond én in de badkamer;
Buitenkozijnen, ramen en deuren geschilderd in 2023;
Parkeerplaats op eigen terrein;
Gelegen in een rustige, kindvriendelijke buurt;
Dicht bij uitvalswegen naar o.a. Amsterdam, Den Haag en Haarlem;
Uitstekende OV-verbindingen via R-net snelbus. (Zuidtangent)
+ Lees de volledige omschrijving