Woningaanbod
Herenstraat 60 a
2215 KJ Voorhout
€ 289.000,- k.k.
Omschrijving
Midden in de gezellige winkelstraat van Voorhout ligt deze lichte maisonnette woning met terras aan de achterzijde. Hier woon je letterlijk met alle voorzieningen om de hoek, terwijl je aan de achterzijde heerlijk buiten kunt zitten.
Zowel het NS-station als het levendige dorpscentrum met een diversiteit aan winkels en horeca zijn op loopafstand. Zee, strand en duinen en de populaire badplaats Noordwijk zijn op fietsafstand. Voorhout ligt in de Randstad, de A4 en A44 zijn snel en goed bereikbaar.
Ben jij klaar om dit appartement naar eigen smaak in te richten? Neem dan snel contact op voor een bezichtiging en ontdek de mogelijkheden zelf!
Indeling:
Begane grond:
Je komt binnen via een gezamenlijke entree, waar ook de meterkasten zijn gevestigd. Het appartement bevindt zich op de eerste en tweede verdieping en is bereikbaar via de gezamenlijke trap.
1e Verdieping:
Entree met toegang tot de hal met de vaste trap naar de slaapkamer en kastruimte. Vanuit de hal bereik je de gang met toegang tot het aparte toilet met wandcloset en fonteintje en de badkamer voorzien van douchecabine, wastafel, mechanische ventilatie en wasmachine/drogeraansluiting. Aan de achterzijde van de woning is de keuken, die is uitgerust met een koelkast, vaatwasser, oven, 4-pitsgasfornuis, afzuigkap, CV-ketel en opbergruimte. De woonkamer is aan de voorzijde, via het raam kijk je naar de gezellige Herenstraat.
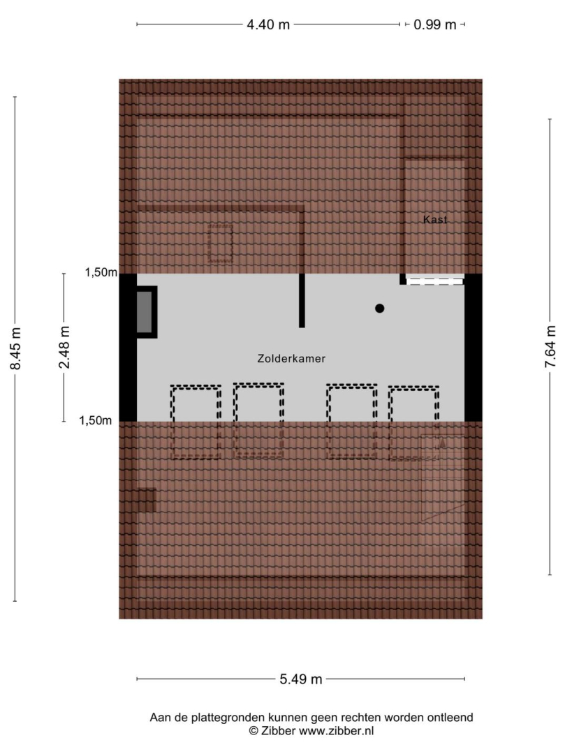
2e Verdieping:
Via de trap bereik je de ruime open tweede verdieping die wordt gebruikt als slaapkamer. De tweede verdieping heeft 4 grote Velux dakramen en 1 klein dakraam.
Terras:
Aan de achterzijde van het appartement geniet je van een heerlijk terras waar je kunt ontspannen in de avondzon.
Bijzonderheden:
Midden in een gezellige winkelstraat;
Terras aan de achterzijde van het pand met recht van overpad voor de bewoners van het andere appartement.
Kosten VvE € 122,42 per maand;
Gebruiksoppervlakte eerste verdieping (wonen): 39,6 m²
Gebruiksoppervlakte tweede verdieping (overige inpandige ruimte): 13,6 m²
Kenmerken
| Overdracht | |
| Status | Verkocht |
| Prijs | € 289.000,- k.k. |
| Vraagprijs per m² | € 5.453 |
| Aanvaarding | In overleg |
| Bouw | |
| Soort bouw | Bestaande bouw |
| Bouwjaar | 1950 |
| Soort dak | ZADELDAK |
| Oppervlakte | |
| Wonen | 53 m² |
| Externe bergruimte | 0 |
| Gebouwgebonden buitenruimte | 18 m² |
| Inhoud | 176 m³ |
| Overige inpandige ruimte | 0 m² |
| Indeling | |
| Aantal kamers | 3 |
| Aantal slaapkamers | 0 |
| Aantal badkamers | 1 badkamers |
| Badkamervooziening | douche, wastafel, wasmachineaansluiting |
| Voorzieningen | Mechanische Ventilatie, Dakraam |
| Energie | |
| Energielabel | D |
| Energielabel einddatum | 22-05-2034 |
| Isolatie | grotendeels dubbelglas |
| Verwarming | cv ketel |
| Warm water | cv ketel |
| Cv-ketel | Nefit (2018) Eigendom |
| Cv-combiketel | Ja |
| Cv-ketel eigendom | eigendom |
| Cv-ketel brandstof | gas |
| Kadastrale gegevens | |
| Gemeente | Voorhout |
| Perceelnummer | 7203 |
| Eigendomssituatie | volle eigendom |
| Sectie | 1039 |
| Gemeentecode | A |
| Ligging | In Centrum |
Meer informatie?
Stuur ons een bericht en we nemen zo snel mogelijk contact met je op.