Omschrijving
Ontdek deze luxe en vrijstaande wellness recreatievilla op het rustige recreatiepark ‘Duyndomein’, direct grenzend aan het uitgestrekte duingebied Duindamseslag en op loop afstand van strand en zee. De woning is gebouwd in 2023, energiezuinig met zonnepanelen en biedt circa 85 m² comfortabele leefruimte, verdeeld over twee verdiepingen. De fijne woning beschikt over drie slaapkamers – waarvan één op de begane grond met een Sun shower en wastafel. Boven bevindt zich een luxe tweede badkamer met sauna, douche, 2 wastafels en wandcloset. De sfeervolle woonkamer met houtkachel opent via dubbele deuren naar het terras met veranda en buitenhaard. Rondom de woning ligt een zonnige, onderhoudsvriendelijke tuin en op de eigen oprit met laadpaal is plaats voor twee auto’s.
Indeling:
Begane grond:
Entree, hal met garderobe, apart toilet met wandcloset, inpandige berging met aansluiting voor de wasapparatuur, boiler, meterkast, omvormer en wasbak met warme en koude kraan. Via de hal komt u in de luxe open keuken met inductiekookplaat, Quooker, vaatwasser, combi oven-magnetron en koelkast met vriesvak. Sfeervolle woonkamer met houtkachel en openslaande deuren naar het terras met veranda en buitenhaard. Op de begane grond vindt u ook nog een slaapkamer met luxe badkamer met een wastafel en sunshower. Op de gehele begane grond ligt een PVC visgraatvloer.
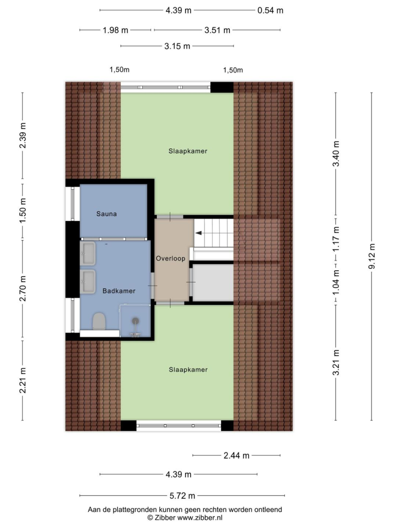
1e Verdieping:
Overloop met berging, welke toegang geeft tot de luxe badkamer, twee ruime slaapkamers met kiepraam. De slaapkamer aan de achterzijde heeft een weids uitzicht over de bollenvelden. De luxe badkamer is voorzien van een sauna, douche, 2e toilet en 2 losse wastafels. Op de gehele verdieping ligt een PVC vloer, op de badkamer na, hier ligt een tegelvloer.
Tuin:
Twee terrassen waarvan één met veranda en buitenhaard.
Bijzonderheden:
Verplichte afname inventaris voor € 12.000,-
Deze hoogwaardige en luxe recreatievilla wordt compleet geleverd, inclusief volledige inrichting en inventaris.
Twee luxe badkamers.
Eigen oprit met plek voor twee auto’s en laadpaal.
4 Zonnepanelen en elektrische radiatoren.
Deze fraaie witte rietgedekte recreatievilla is volledig geïsoleerd.
Deze woning wordt excl. BTW aangeboden met een mogelijkheid tot verrekening.
De parkkosten bedragen thans ca. € 429,- per maand.
Ontdek deze luxe en vrijstaande wellness recreatievilla op het rustige recreatiepark ‘Duyndomein’, direct grenzend aan het uitgestrekte duingebied Duindamseslag en op loop afstand van strand en zee. De woning is gebouwd in 2023, energiezuinig met zonnepanelen en biedt circa 85 m² comfortabele leefruimte, verdeeld over twee verdiepingen. De fijne woning beschikt over drie slaapkamers – waarvan één op de begane grond met een Sun shower en wastafel. Boven bevindt zich een luxe tweede badkamer met sauna, douche, 2 wastafels en wandcloset. De sfeervolle woonkamer met houtkachel opent via dubbele deuren naar het terras met veranda en buitenhaard. Rondom de woning ligt een zonnige, onderhoudsvriendelijke tuin en op de eigen oprit met laadpaal is plaats voor twee auto’s.
Indeling:
Begane grond:
Entree, hal met garderobe, apart toilet met wandcloset, inpandige berging met aansluiting voor de wasapparatuur, boiler, meterkast, omvormer en wasbak met warme en koude kraan. Via de hal komt u in de luxe open keuken met inductiekookplaat, Quooker, vaatwasser, combi oven-magnetron en koelkast met vriesvak. Sfeervolle woonkamer met houtkachel en openslaande deuren naar het terras met veranda en buitenhaard. Op de begane grond vindt u ook nog een slaapkamer met luxe badkamer met een wastafel en sunshower. Op de gehele begane grond ligt een PVC visgraatvloer.
1e Verdieping:
Overloop met berging, welke toegang geeft tot de luxe badkamer, twee ruime slaapkamers met kiepraam. De slaapkamer aan de achterzijde heeft een weids uitzicht over de bollenvelden. De luxe badkamer is voorzien van een sauna, douche, 2e toilet en 2 losse wastafels. Op de gehele verdieping ligt een PVC vloer, op de badkamer na, hier ligt een tegelvloer.
Tuin:
Twee terrassen waarvan één met veranda en buitenhaard.
Bijzonderheden:
Verplichte afname inventaris voor € 12.000,-
Deze hoogwaardige en luxe recreatievilla wordt compleet geleverd, inclusief volledige inrichting en inventaris.
Twee luxe badkamers.
Eigen oprit met plek voor twee auto’s en laadpaal.
4 Zonnepanelen en elektrische radiatoren.
Deze fraaie witte rietgedekte recreatievilla is volledig geïsoleerd.
Deze woning wordt excl. BTW aangeboden met een mogelijkheid tot verrekening.
De parkkosten bedragen thans ca. € 429,- per maand.
+ Lees de volledige omschrijving