2d3af885443d2439ebc32f07b5b7b696

Bedrijfsaanbod

Duinweg 107

2204 AT Noordwijk

€ 3.175.000,-

Omschrijving

ENGLISH DOWN BELOW

Exclusieve villa aan de Nederlandse kust

Stelt u zich voor: wonen in een architectonisch meesterwerk, ontworpen door Van Egmond Architecten in samenwerking met de creatieve eigenaar. Hier, waar het zachte ruisen van de duinen uw dagelijkse soundscape vormt, staat de exclusieve villa aan de Duinweg 107, een woning die een ongeëvenaarde woonervaring biedt.
Deze villa is geen onbekende voor de kijker. Het was het decor voor het populaire programma Married at First Sight en speelde een hoofdrol in de spraakmakende Vlaamse serie Le Chalet. Hier heeft u niet alleen een huis, u bezit een stukje cultureel erfgoed dat garant staat voor stijl en klasse.
Puur vijfsterrencomfort in een adembenemende setting. Deze villa ademt ruimte en verfijning, waarbij natuurlijke materialen de toon zetten. Met een royale indeling, luxe voorzieningen en een panoramisch uitzicht dat overgaat in bos en duin, beleeft u hier elke dag het ultieme vakantiegevoel. Een oase van rust en privacy, op slechts enkele minuten van de bruisende boulevard en het strand van Noordwijk.
Deze stijlvolle en volledig ingerichte villa gelegen op een royaal recreatief perceel van 2.775 m² is bijzonder duurzaam met energielabel A++ en beschikt over zeven slaapkamers, elk voorzien van een eigen badkamer en satelliet-tv. Daarmee is de woning ideaal voor groepen, families of zakelijke verblijven. Ook biedt het hierdoor uitstekende verhuurmogelijkheden, waardoor het een aantrekkelijke investering is.

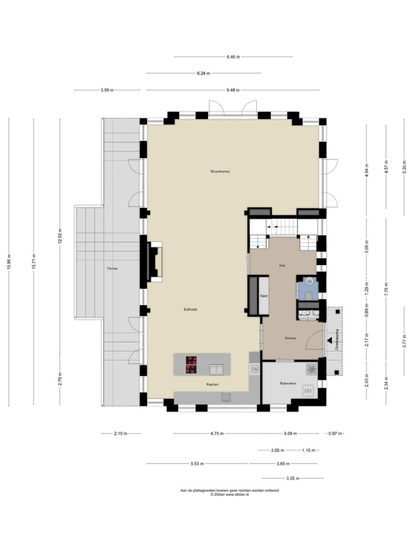
Indeling begane grond:
Entree/Hal:
Via een prachtige eikenhouten deur betreedt u de woning. In de hal bevinden zich het separate toilet, de bijkeuken met opstelplaats voor de wasapparatuur en het trappenhuis naar het souterrain en de eerste verdieping. De gehele verdieping is voorzien van een fraaie natuurstenen vloer, wat bijdraagt aan de luxe en stijlvolle uitstraling van de woning. Vanuit de hal heeft u via openslaande deuren toegang tot de keuken, en middels eikenhouten schuifbare loft deuren bereikt u de sfeervolle woonkamer.

Living:
De woonkamer is een sfeervolle en lichte ruimte, voorzien van een moderne gashaard en comfortabele vloerverwarming, wat bijdraagt aan het aangename woonklimaat, ook in de wintermaanden. De ruimte wordt omringd door maar liefst zes (openslaande) deuren naar het terras, waardoor binnen en buiten naadloos in elkaar overlopen. Dankzij de vele ramen en deuren is de woonkamer bijzonder licht en voelt deze open en ruimtelijk aan. De combinatie van hout- en natuurelementen, geeft de ruimte een warme, bijna mediterrane sfeer, stijlvol, uitnodigend en karaktervol. Daarnaast zijn er al aansluitingen voorbereid voor het ophangen van een beamer, wat deze ruimte ook zeer geschikt maakt voor filmavonden of presentaties.

Woonkeuken:
Aangrenzend bevindt zich de ruime en volledig uitgeruste leefkeuken, waar koken en samenkomen perfect combineren. De keuken is voorzien van hoogwaardige inbouwapparatuur, waaronder twee inductiekookplaten, een plafondafzuigkap, twee vaatwassers, een koelkast, een oven, een combi-oven en twee spoelbakken. Daarnaast is er een kleine bar met drie barkrukken, ideaal voor een snel ontbijt of een goed glas wijn tijdens het koken. Uiteraard is er volop opbergruimte dankzij de vele lades en kasten. De aangrenzende eethoek biedt plaats aan maar liefst 18 personen en vormt daarmee de perfecte plek voor gezellige diners, spelletjesavonden of lange gesprekken met familie en vrienden.

Indeling Souterrain:
De benedenverdieping biedt vier smaakvol ingerichte slaapkamers, waarvan twee ruimer van opzet zijn en twee iets compacter. Drie van de vier kamers hebben via openslaande deuren direct toegang tot het terras. Alle slaapkamers zijn voorzien van een moderne pvc-vloer, vloerverwarming, satelliet-tv én ingebouwde kasten. Daarnaast beschikt elke kamer over een eigen badkamer met douche, wastafel en toilet.
Op de centrale overloop bevindt zich een inloop linnenkast, en daarnaast is er een aparte technische ruimte met opstelplaats voor de ketel, warmtepomp, nano-panelen (zonnecollectoren) en twee boilers van elk 500 liter. Deze berging biedt tevens extra opslagruimte.

Indeling 1e verdieping:
Op de bovenste verdieping bevinden zich drie sfeervolle slaapkamers, elk met een hoog plafond, veel natuurlijk licht en een comfortabele indeling. Twee van de drie kamers zijn ingericht met zowel een tweepersoons- als een eenpersoonsbed.
De derde kamer beschikt enkel over een tweepersoonsbed. Alle kamers zijn afgewerkt met zachte vloerbedekking, wat zorgt voor een warme en aangename sfeer. Daarnaast is er praktische opbergruimte aanwezig. Elke slaapkamer beschikt over een eigen badkamer met douche, wastafel en toilet. Eén van de badkamers is bovendien voorzien van een ligbad, wat zorgt voor extra comfort en luxe. Deze verdieping is perfect voor gezinnen met kinderen of voor gasten die wat meer rust en privacy wensen.

Tuin:
De villa is omringd door een professioneel ontworpen, fraai aangelegde tuin die in elk seizoen rust en luxe uitstraalt. Het tuinontwerp is afkomstig van een landschapsarchitect en is met veel zorg aangelegd en onderhouden. Diverse terrassen, graspartijen en beschutte zithoeken maken de buitenruimte tot een volwaardige verlenging van het wooncomfort.
Centraal in de tuin ligt een indrukwekkende, natuurlijk gefilterde zwemvijver van circa 3 meter diep, compleet met een klein zandstrandje en comfortabele ligbedden, een perfecte plek om op warme dagen te ontspannen. Langs het pad dat van de villa naar de zwemvijver loopt, zorgen sfeervolle fakkels voor een bijzondere ambiance in de avonduren.
Onder een ruime overkapping bevindt zich een luxe wellnesshoek met een jacuzzi, een sauna, een comfortabele zithoek, een douche en een toilet. Hier kunt u het hele jaar door in alle privacy genieten van ontspanning en comfort. Achter de overkapping leidt een pad direct het bos met aansluitend duingebied in, ideaal voor een ochtendwandeling of even ontsnappen in de natuur.
Naast de wellness faciliteiten is er een praktische berging waarin zich onder meer de boiler, de elektrakast en de pompinstallatie voor de zwemvijver bevinden. Via een hek aan het einde van het pad loopt u zo het bos in, dat overgaat in het prachtige duingebied en u in tien minuten naar het strand voert.
Aan de villa zelf grenst een ruim terras met meerdere zitplekken, deels overdekt, en een sfeervolle hout gestookte open haard waardoor u ook op koelere avonden heerlijk buiten kunt zitten.
Ook voor kinderen is er volop ruimte om veilig te spelen. De volledig omheinde tuin beschikt over een eigen speelterrein met kunstgras, een trampoline, schommel, tafeltennistafel en een hangmat.
Aan de achterzijde van het perceel is ruime parkeergelegenheid aanwezig op eigen terrein, met plaats voor circa 10 auto’s.

Hoogtepunten op een rij:
Recreatie villa gelegen in het meest exclusieve duingebied van Noordwijk.
Rechtstreekse toegang tot het beschermde natuurgebied.
Een architectonisch juweel met 5-sterren afwerking.
Bekend door optredens in Married at First Sight en Le Chalet.
Een unieke investering in een onovertroffen locatie.
Zeer duurzaam gebouwd met A++ label.

Uw kans op een legendarisch thuis. Dit is een zeldzame gelegenheid om een woning te verwerven die luxe, natuur en roem perfect verenigt. Een villa die niet alleen voldoet aan de hoogste eisen van comfort, maar ook een verhaal vertelt.

ENGLISH
Imagine this: living in an architectural masterpiece, designed by Van Egmond Architecten in collaboration with the creative owner. Here, where the gentle whisper of the dunes forms your daily soundscape, stands the exclusive villa at Duinweg 107 A residence that offers an unparalleled living experience. This villa is no stranger to the public eye. It served as the backdrop for the popular program Married at First Sight and played a leading role in the acclaimed Flemish series Le Chalet. Here, you don’t just own a house you own a piece of cultural heritage that radiates style and class.

Pure five star comfort in a breathtaking setting. This villa exudes space and refinement, with natural materials setting the tone. With a generous layout, luxurious amenities, and panoramic views that merge seamlessly into forest and dunes, every day here feels like the ultimate holiday. An oasis of peace and privacy, just minutes away from Noordwijk’s vibrant boulevard and beach.

This stylish and fully furnished villa, situated on a spacious recreational plot of 2,775 m², is exceptionally sustainable with an A++ energy label and offers seven bedrooms, each with its own bathroom and satellite TV. This makes the property perfect for groups, families, or business stays. It also offers excellent rental potential, making it a highly attractive investment.


Layout Ground Floor
Entrance/Hallway:
Through a beautiful oak front door you enter the home. In the hallway you will find the separate toilet, the utility room with space for laundry appliances, and the staircase leading to both the basement and the first floor. The entire floor is finished with an elegant natural stone floor, enhancing the home’s luxurious and stylish appearance. From the hallway, double doors provide access to the kitchen, while oak sliding loft doors lead you into the atmospheric living room.

Living Room:
The living room is a warm and inviting space, filled with natural light and featuring a modern gas fireplace and comfortable underfloor heating, ensuring a pleasant indoor climate even during the winter months. The room is surrounded by no fewer than six French doors leading to the terrace, creating a seamless connection between indoor and outdoor living. Thanks to the abundance of windows and doors, the living area feels exceptionally bright, open, and spacious. The combination of wood and natural elements lends the room a warm, almost Mediterranean atmosphere stylish, inviting, and full of character. In addition, connections have already been prepared for installing a projector, making this space equally sui

+ Lees de volledige omschrijving

Woningvideo

Kenmerken

Overdracht
Status Beschikbaar
Prijs € 3.175.000,-
Bouw
Soort bedrijfsruimte Bedrijfsruimtes
Soort bouw Bestaande bouw
Bouwjaar 2017
Oppervlakte
Perceel 2775 m²
Energie
Energielabel A++
Energielabel einddatum 03-10-2035
Cv-combiketel Nee
Kadastrale gegevens
Gemeente Noordwijk
Oppervlakte 2775 m³
Parkeerplaatsen 0 0 overdekt
Ligging Landelijk Gebied

Plattegronden

1010 lilian aartman fotografie warmerdam makelaardij noordwijkerhout 2025 07 15

Meer informatie?

Stuur ons een bericht en we nemen zo snel mogelijk contact met je op.

Anti-spam
Typ bovenstaande code over.