
Nieuw
Woningaanbod
Duinschooten 12 152
2211 ZC Noordwijkerhout
€ 193.500 k.k.
Omschrijving
Stenen recreatiebungalow gelegen op het bungalowpark “Sollasi”, nabij zee strand en duinen. De woning heeft een heerlijke tuin op het zuiden gelegen en staat op een perceel van 168 m² (erfpacht). De inrichting voorziet in 3 slaapkamers, een badkamer en een ruime woonkamer met open keuken. Het park bevindt zich te midden van de bollenvelden met het gezellige Noordwijkerhout, Langevelderslag en de moderne badplaats Noordwijk in de directe omgeving. Ook op en nabij het park zijn horecagelegenheden, ruime parkeervoorzieningen, speelweides en in het naastgelegen Oosterduinsemeer kunnen diverse takken van watersport worden beoefend.
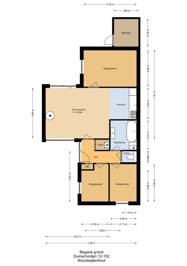
Indeling:
Begane grond:
Entree, hal met meterkast, toilet en bergkast met opstelplaats voor de hete luchtverwarming. De woonkamer is heerlijk licht, heeft een schuifpui naar de tuin en een sfeervolle openhaard. De open keuken is voorzien van 4-pits gaskookplaat, afzuigkap, vaatwasser en koelkast met vriesvak. Vanuit de woonkamer is de ruime slaapkamer bereikbaar, de overige 2 slaapkamers zijn vanuit de hal bereikbaar. De badkamer is ingericht met een dubbel wastafelmeubel, ligbad, douche met regendouche en handdouche, aansluiting voor wasmachine en een Vaillant geiser. De woonkamer en slaapkamers zijn voorzien van een nette laminaatvloer.
Tuin:
De op het zuiden gelegen tuin is onderhoudsvriendelijk, voorzien van groene borders, een houten berging, een achterom en heeft een beschutte ligging.
Bijzonderheden:
10 Zonnepanelen (ter overname);
Elektrisch zonnescherm aan de achterzijde bij de schuifpui;
Kunststof boeidelen;
Inclusief inventaris;
Erfpachtcanon 2025: € 3.400,--
Akte van erfpacht loopt tot 31-12-2027;
Parkkosten circa € 1.550,-- per jaar;
Er dient een ‘verklaring van geen bezwaar’ te worden aangevraagd bij de gemeente Noordwijkerhout om de bungalow te mogen kopen.
De overdrachtsbelasting is verschuldigd over koopsom vermeerderd met de gekapitaliseerde erfpachtcanon.
Kenmerken
Overdracht | |
Status | Beschikbaar |
Prijs | € 193.500 k.k. |
Vraagprijs per m² | € 3.023 |
Aanvaarding | In overleg |
Bouw | |
Soort woonhuis | Recreatiewoning |
Soort bouw | Bestaande bouw |
Bouwjaar | 1976 |
Toegankelijkheid | |
Specifiek | |
Soort dak |
Oppervlakte | |
Gebruikersoppervlakten | |
Wonen | 64 m² |
Externe bergruimte | |
Gebouwgebonden buitenruimte | |
Perceel | 168 m² |
Inhoud | 260 m³ |
Indeling | |
Aantal kamers | 4 |
Aantal badkamers | 1 badkamers |
Badkamervooziening | ligbad, douche, dubbele_wastafel, wasmachineaansluiting |
Aantal woonlagen | |
Voorzieningen | tv kabel, buitenzonwering, schuifpui, zonnepanelen |
Energie | |
Energie Label | D |
Isolatie | |
Verwarming | hete lucht verwarming |
Warm water | geiser eigendom |
Cv-ketel |
Kadastrale gegevens | |
Gemeente | Noordwijkerhout |
Perceelnummer | 4554 |
Eigendomssituatie | eigendom belast met erfpacht |
Sectie | 696E |
Oppervlakte | 168 |

Meer informatie?
Stuur ons een bericht en we nemen zo snel mogelijk contact met je op.